中盛康城上下两层南北通透采光无遮挡 69

4694元/㎡

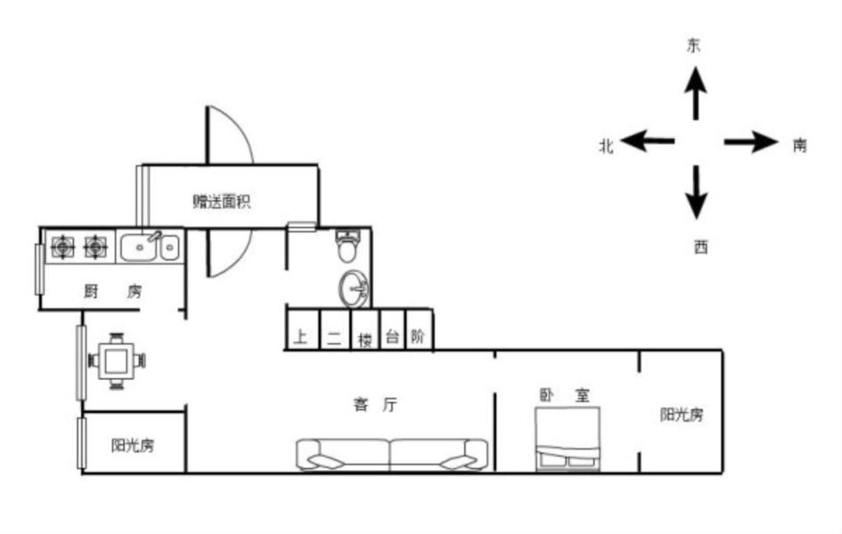
3室2厅1卫

户型

147㎡

建筑面积

南向

朝向

中等装修

装修

2012年

建造年代

5层

共6层

住宅

房产类别

商品房

产权类型

70年

产权年限

-

有无电梯
房源动态
  • 100%

    看房处理

  • 2068

    已浏览

  • 0

    已预约

  • 2017-07-07

    最近登录

描述

中盛康城  上下两层 南北通透 采光无遮挡  环境舒适 交通便利 周围 市场 超市 银行 学校 一应俱全 拎包即住 先到先得

图片
位置
  • 交通地段
  • 教育机构
  • 医疗设施
  • 购物商超
  • 餐饮娱乐
猜您喜欢
免责声明:房源信息由网站用户提供,其真实性、合法性由信息提供者负责,最终以政府部门登记备案为准。本网站不声明或保证内容之正确性和可靠性,购买该房屋时,请谨慎核查。请您在签订合同之前,切勿支付任何形式的费用,以免上当受骗。
孙宜胜经纪人

电话:

18352128050
手机看房源
同小区房源