新浦兴业小区多层三室两厅送车库建宁小学海宁中学双 88

8980元/㎡

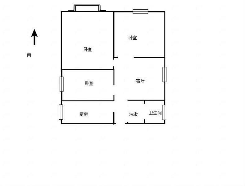
3室2厅1卫

户型

98㎡

建筑面积

南向

朝向

简单装修

装修

2003年

建造年代

5层

共6层

住宅

房产类别

商品房

产权类型

70年

产权年限

-

有无电梯
房源动态
  • 100%

    看房处理

  • 2521

    已浏览

  • 0

    已预约

  • 2017-12-13

    最近登录

描述

核心卖点 新浦兴业小区 在海宁大道上 玉带新村小区旁 周边直销市场 大菜场 学校就在附近 附近公园 孔望山风景区都在附近 生活很方便产证97.9平 多层5楼 三室两厅 送车库有建宁小学 海宁中学双学区

配套

水,电,气,床,电话,宽带,冰箱,空调,热水器

图片
位置
  • 交通地段
  • 教育机构
  • 医疗设施
  • 购物商超
  • 餐饮娱乐
猜您喜欢
免责声明:房源信息由网站用户提供,其真实性、合法性由信息提供者负责,最终以政府部门登记备案为准。本网站不声明或保证内容之正确性和可靠性,购买该房屋时,请谨慎核查。请您在签订合同之前,切勿支付任何形式的费用,以免上当受骗。
小杨经纪人

电话:

18550692267
手机看房源
同小区房源