好房诚售凤舞铭居南北通透两室109.9万税各付邻 109

11330元/㎡

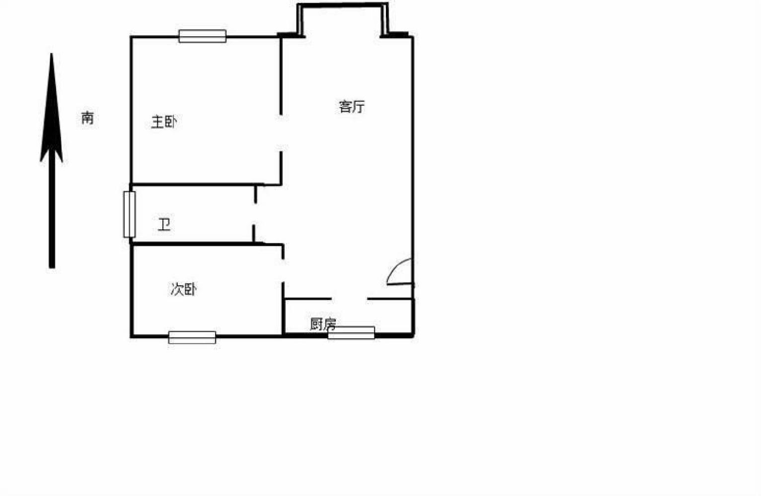
2室2厅1卫

户型

97㎡

建筑面积

南向

朝向

豪华装修

装修

2016年

建造年代

3层

共25层

住宅

房产类别

商品房

产权类型

70年

产权年限

-

有无电梯
房源动态
  • 100%

    看房处理

  • 2249

    已浏览

  • 0

    已预约

  • 2020-05-23

    最近登录

描述

核心卖点 
[****不动产**]本房源真实存在,真实委托,真实价格!
卖点一:房型方正,精装两室,全明户型,采光好!
卖点二:紧邻菜场,超市,学校。
卖点三:房子随时看房
卖点四:新海教育集团凤凰校区九年制
诚心出售--------业主已经委托我们来出售此房,产权明晰,您可以放心购买小区环境优雅,配套非常成熟,周边交通便利,居住舒适。自我介绍:本人从事二手房交易很多时间了解限购政策和*的贷款政策,,为每一位选择我的客户提供高效,周到,热情的服务是我的宗旨。我不善言辞,却值得信赖,请相信我一定会全力以赴为选择我的客户在保证少打扰您的情况下,为您提供安全,高效,专业,愉快的房产流通服务。选择我=选择放心,21世纪不动产。温馨提示:可以点击我的头像进入店铺,一站式浏览更多**房源

图片
位置
  • 交通地段
  • 教育机构
  • 医疗设施
  • 购物商超
  • 餐饮娱乐
猜您喜欢
免责声明:房源信息由网站用户提供,其真实性、合法性由信息提供者负责,最终以政府部门登记备案为准。本网站不声明或保证内容之正确性和可靠性,购买该房屋时,请谨慎核查。请您在签订合同之前,切勿支付任何形式的费用,以免上当受骗。
张继康经纪人

电话:

18115995318
手机看房源
同小区房源