小三室精装修家具家电全送,中介勿扰 107

12022元/㎡

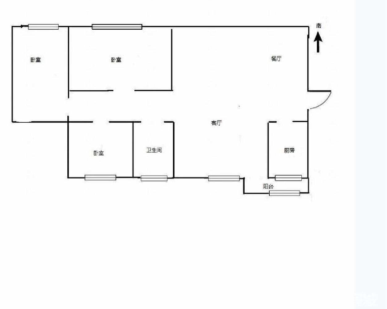
3室2厅1卫

户型

89㎡

建筑面积

南向

朝向

豪华装修

装修

2012年

建造年代

9层

共33层

住宅

房产类别

商品房

产权类型

70年

产权年限

-

有无电梯
房源动态
  • 100%

    看房处理

  • 2389

    已浏览

  • 0

    已预约

  • 2019-05-08

    最近登录

描述

核心卖点
                            
                        小三室,精装修,家具家电全送,中介勿扰
                    房东置换,诚心出售,欢迎看房,随时恭候您的到来。小区环境优雅,配套成熟,周边,居住舒适。本人从事房多年,公司有大量好房源,我的店铺查看,欢迎随时电话咨询,相信我的专业,为您置业安家保驾护航。

图片
位置
  • 交通地段
  • 教育机构
  • 医疗设施
  • 购物商超
  • 餐饮娱乐
猜您喜欢
免责声明:房源信息由网站用户提供,其真实性、合法性由信息提供者负责,最终以政府部门登记备案为准。本网站不声明或保证内容之正确性和可靠性,购买该房屋时,请谨慎核查。请您在签订合同之前,切勿支付任何形式的费用,以免上当受骗。
陈希法经纪人

电话:

13775484725
手机看房源
同小区房源