登泰新村解放路新海双校区多层三楼大车库精装户型方 135

10150元/㎡

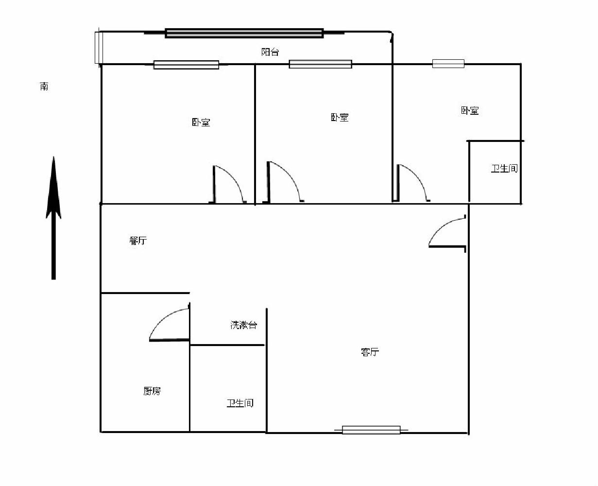
3室2厅2卫

户型

133㎡

建筑面积

南向

朝向

豪华装修

装修

2000年

建造年代

3层

共6层

住宅

房产类别

商品房

产权类型

70年

产权年限

-

有无电梯
房源动态
  • 100%

    看房处理

  • 1533

    已浏览

  • 0

    已预约

  • 2019-07-08

    最近登录

描述

核心卖点 
1.:.未占用、上学近
2.税费:各付
3.户型:楼层,全明通透,景观位置,公摊小,南北通透
4.采光:楼层,采光佳,前后无遮挡
5.产权:产权明晰无纠纷 产权人能到场签署合同
6.装修:精装修,真实照片,可供参考
7.售房原因:外地就业 诚意售房
8.综合评估:属于本小区的市场行情价位,价位适中。本公司房源充足,另外有多套房源出售,没办法在网络上一一呈现,所以看房时候一定带您多看几套,来电也可以告知另外的类似房源。
            1、业主心态:诚意出售此房2、看房方式:提前预约即可看房
        小区环境优雅,配套非常成熟,周边交通便利,居住舒适。            收取服务费:最高6950元(≤0.5%)温馨提示:您所看到的价格全为业主所报的各付各税实价,为了省去您不必要的麻烦,倘若发现相同房源更低或者超格时,还希望您能三思而后行,这里的房源只为有需求的您准备。本人还有周边其他房源,欢迎您来店咨询,您所看到的房源都可以随时看房.我只承诺,您跟我看房肯定会买到便宜的房子我们有强大的精英团队,为您发掘的房源,精准匹配,不会让您失望,不发虚假房源,不做格,只做诚信经纪人。

图片
位置
  • 交通地段
  • 教育机构
  • 医疗设施
  • 购物商超
  • 餐饮娱乐
猜您喜欢
免责声明:房源信息由网站用户提供,其真实性、合法性由信息提供者负责,最终以政府部门登记备案为准。本网站不声明或保证内容之正确性和可靠性,购买该房屋时,请谨慎核查。请您在签订合同之前,切勿支付任何形式的费用,以免上当受骗。
于苏经纪人

电话:

15896121195
手机看房源
同小区房源