实验九年制学校港城一品113平110万南北通透经 110

9735元/㎡

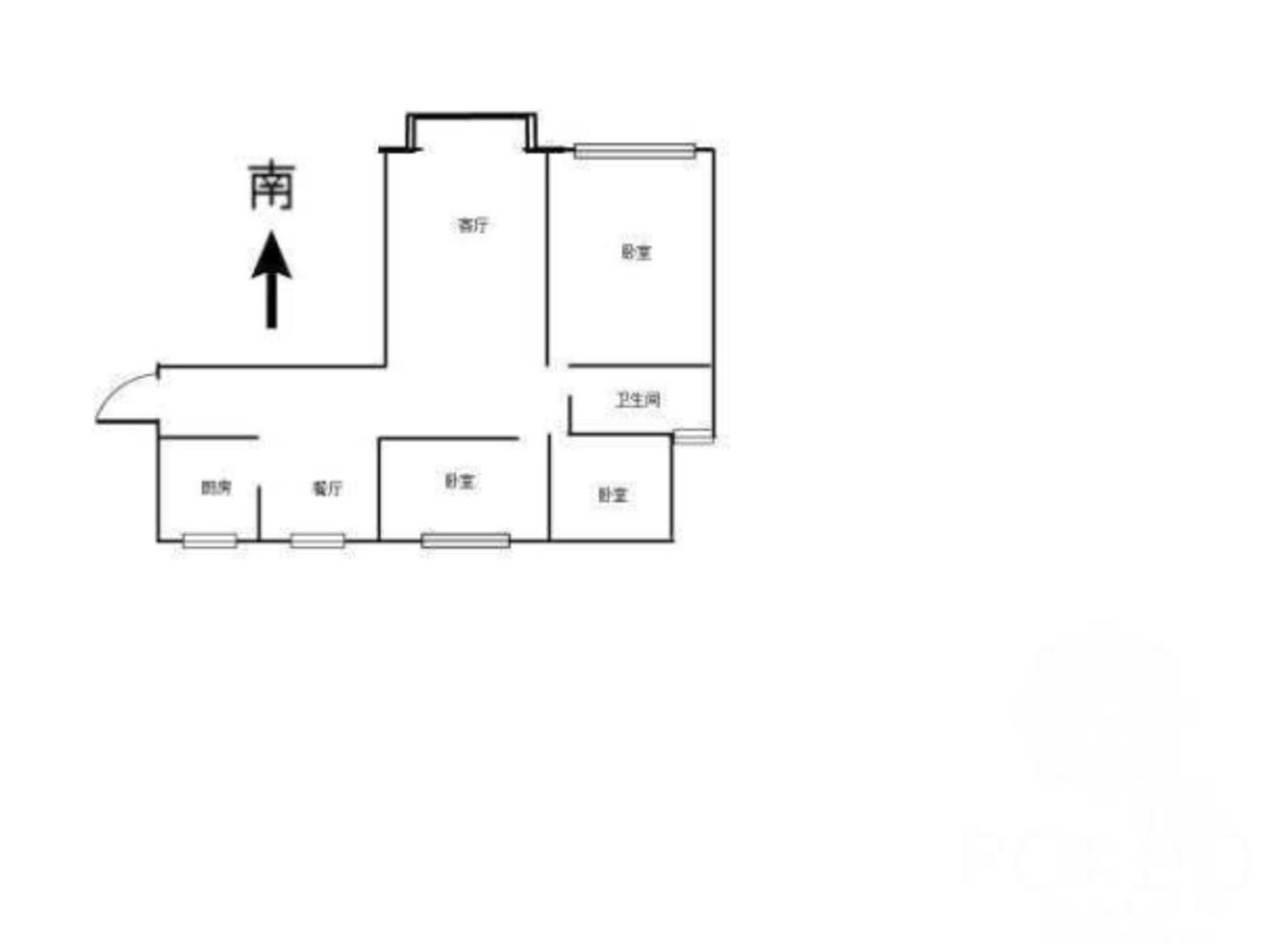
3室2厅1卫

户型

113㎡

建筑面积

南向

朝向

毛坯

装修

2012年

建造年代

9层

共22层

住宅

房产类别

商品房

产权类型

70年

产权年限

-

有无电梯
房源动态
  • 100%

    看房处理

  • 2301

    已浏览

  • 0

    已预约

  • 2018-12-01

    最近登录

描述

核心卖点 
1.学 区:学 区.未占用
2.税费:各付各税
3.户型:精品楼层,全明通透,布局合理,没有任何浪费面积
4.采光:黄金楼层,采光佳,前后无遮挡
5.产权:产权明晰无纠纷产权人能到场签署合同
                            
                                
                            
                        
                            业主人很好,很直爽,诚心售房,积极配合办理房产过户等一切手续,看房方便
                        
                    小区环境优雅,配套非常成熟,周边交通便利,居住舒适。
                            
                                
                            
      &

图片
位置
  • 交通地段
  • 教育机构
  • 医疗设施
  • 购物商超
  • 餐饮娱乐
猜您喜欢
免责声明:房源信息由网站用户提供,其真实性、合法性由信息提供者负责,最终以政府部门登记备案为准。本网站不声明或保证内容之正确性和可靠性,购买该房屋时,请谨慎核查。请您在签订合同之前,切勿支付任何形式的费用,以免上当受骗。
张典经纪人

电话:

13912188683
手机看房源
同小区房源