南北通透(润城东方)三室朝阳精装修,看房方便 157

11894元/㎡

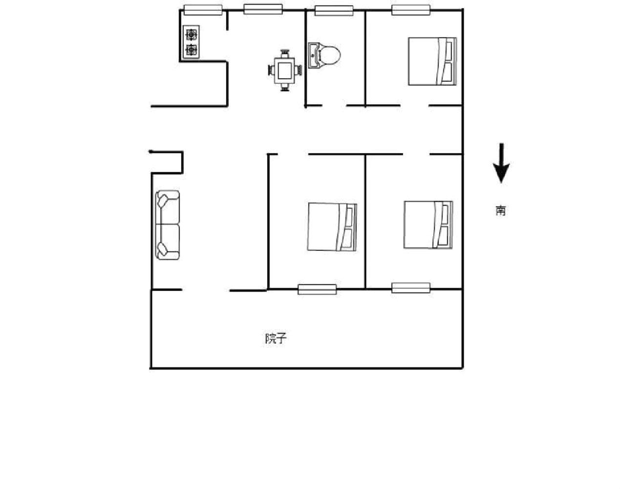
3室2厅1卫

户型

132㎡

建筑面积

南向

朝向

豪华装修

装修

2011年

建造年代

5层

共11层

住宅

房产类别

商品房

产权类型

70年

产权年限

-

有无电梯
房源动态
  • 100%

    看房处理

  • 2694

    已浏览

  • 0

    已预约

  • 2019-07-28

    最近登录

描述

核心卖点 
1、学.区:三附小,凌州路小学,外国语中学
2、税费:各付各税
3、户型:南北通透,户型方正,得房率高,全明化设计,布局合理,餐厨一体化 。
4、采光:超大楼间距,采光非常好,前后无任何遮挡
5、产权:产权明晰,无任何产权纠纷,产权人能随时到场签署合同
6、装修:精装修
师专一附小教育集团盐河校区
润城东方、蓝天华侨城、万润一品苑、同科汇丰国际、顺天国际花园、温哥华国际花园、万源花苑、国土局宿舍楼、巨龙社区、振兴时尚街区、阳光丽景、万顺园、金茂花园
房子产权清晰,无任何不良抵押,房东诚心急售,大大节省了您的成本!
师专一附小教育集团盐河校区
润城东方、蓝天华侨城、万润一品苑、同科汇丰国际、顺天国际花园、温哥华国际花园、万源花苑、国土局宿舍楼、巨龙社区、振兴时尚街区、阳光丽景、万顺园、金茂花园小区环境优雅,配套成熟,交通便利,居住舒适.收取服务费:最高16000元(≤1%)本人从事房地产经纪行业多年,具有丰富的从业经验,熟悉小区各种户型,了解小区周围配套及未来发展规划,为您计算购房的税费及首付,为您合理科学的设计购房规划,本人从业期间,办理过商业贷款,公积金贷款,组合贷款,转按揭等各种单子,熟悉交易流程,而且本人服务热情周到,专业真诚,希望有机会为您提供置业服务,为您找到满意的家!

图片
位置
  • 交通地段
  • 教育机构
  • 医疗设施
  • 购物商超
  • 餐饮娱乐
猜您喜欢
免责声明:房源信息由网站用户提供,其真实性、合法性由信息提供者负责,最终以政府部门登记备案为准。本网站不声明或保证内容之正确性和可靠性,购买该房屋时,请谨慎核查。请您在签订合同之前,切勿支付任何形式的费用,以免上当受骗。
万先生经纪人

电话:

19895955007
手机看房源
同小区房源