一附小外国语精装修三室首付均价低拎包即住急用钱低 130

10078元/㎡

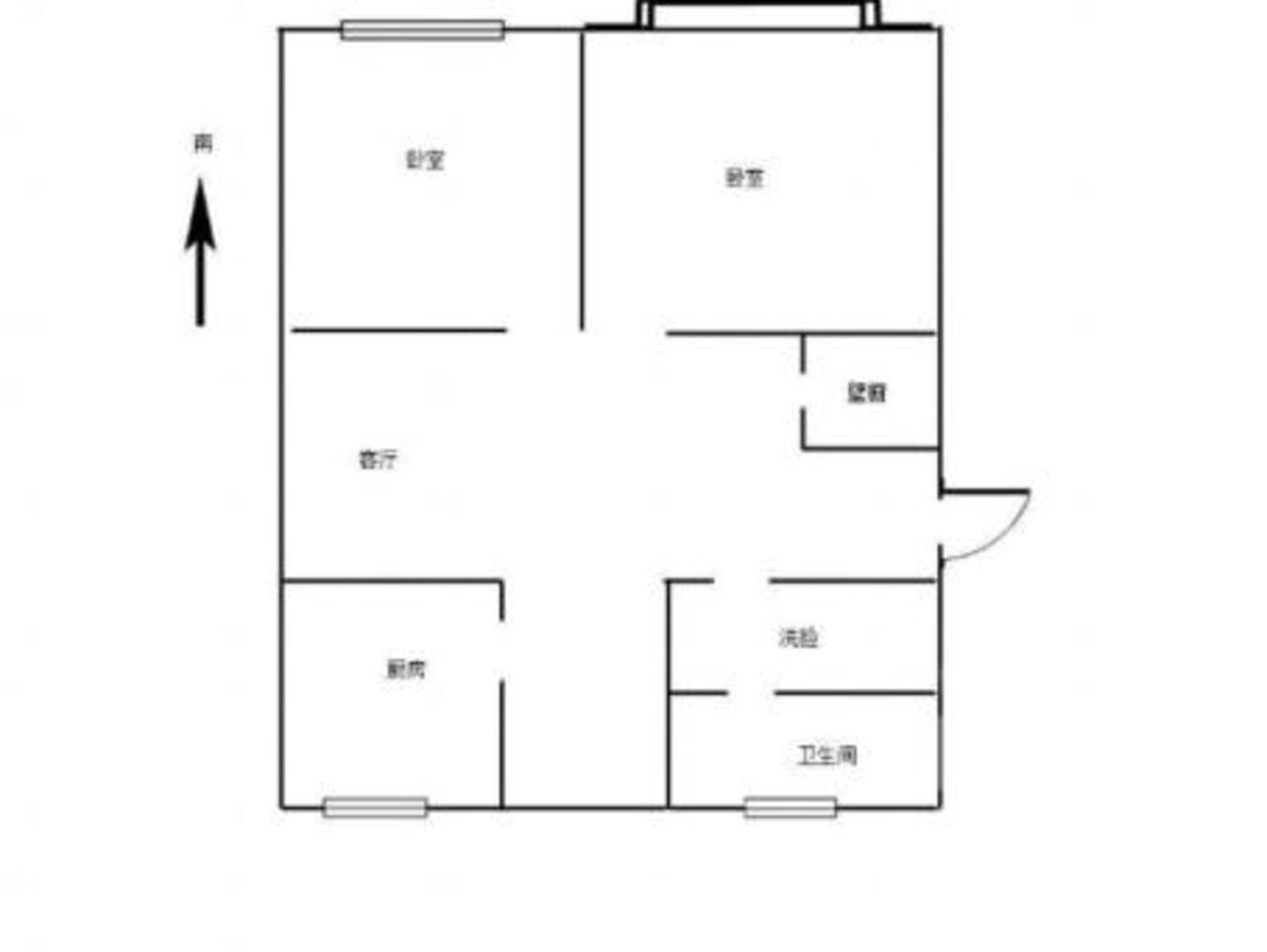
3室2厅1卫

户型

129㎡

建筑面积

南向

朝向

豪华装修

装修

2010年

建造年代

14层

共17层

住宅

房产类别

商品房

产权类型

70年

产权年限

-

有无电梯
房源动态
  • 100%

    看房处理

  • 2272

    已浏览

  • 0

    已预约

  • 2018-10-27

    最近登录

描述

核心卖点 
:.未占用
2.税费:各付各税。
3.户型:楼层,全明通透,布局合理,没有任何浪费面积
4.采光:楼层,采光佳,前后无遮挡
5.产权:产权明晰无纠纷产权人能到场签署合同
                            业主诚心售房,房源真实、报价有效,看好可以约房东当面谈价
                        
                            周边配套:地理位置优越,周边学校、超市、银行、菜场一应俱全,出行生活都非常方便
                        
                            收取服务费:最高10400元(≤0.8%)本人从事房地产多年,公司有大量好房源,欢迎进入我的店铺查看,欢迎随时电话咨询,相信我的专业,为您置业安家保驾护航。

图片
位置
  • 交通地段
  • 教育机构
  • 医疗设施
  • 购物商超
  • 餐饮娱乐
猜您喜欢
免责声明:房源信息由网站用户提供,其真实性、合法性由信息提供者负责,最终以政府部门登记备案为准。本网站不声明或保证内容之正确性和可靠性,购买该房屋时,请谨慎核查。请您在签订合同之前,切勿支付任何形式的费用,以免上当受骗。
于苏经纪人

电话:

15896121195
手机看房源
同小区房源