四季金辉精装未入住采光无敌南北通透户型正送入户花 165

14103元/㎡

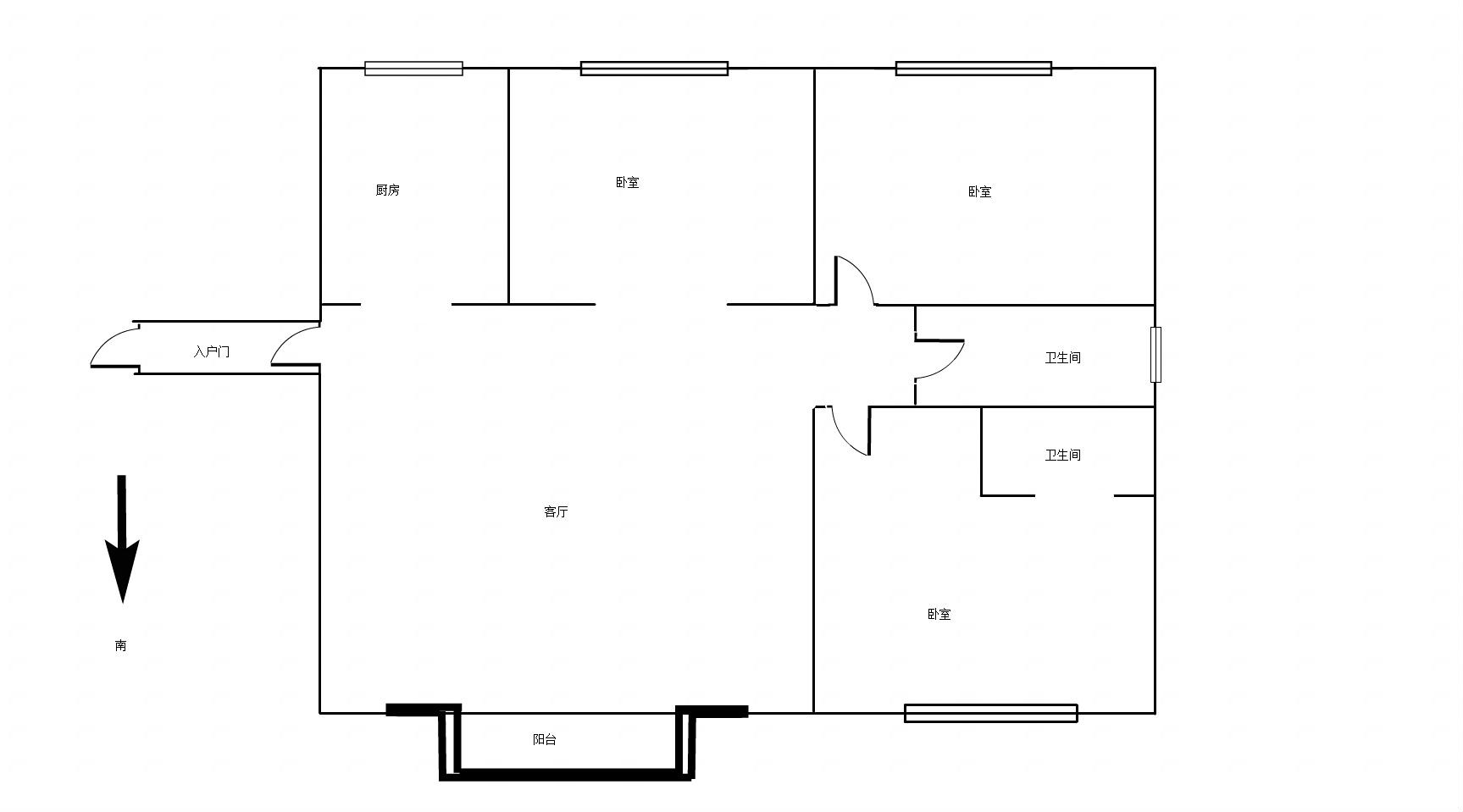
3室2厅2卫

户型

117㎡

建筑面积

南向

朝向

中等装修

装修

2000年

建造年代

3层

共20层

住宅

房产类别

商品房

产权类型

70年

产权年限

-

有无电梯
房源动态
  • 100%

    看房处理

  • 2212

    已浏览

  • 0

    已预约

  • 2018-12-23

    最近登录

描述

四季金辉 精装未入住 采光无敌 南北通透 户型正 送入户花园
四季金辉 精装未入住 采光无敌 南北通透 户型正 送入户花园房东置换,诚心出售,欢迎看房,随时恭候您的到来。小区环境优雅,配套非常成熟,周边交通便利,居住舒适。房管家于苏 电话158.9612.1195,微信同号 
从事二手房交易三年时间,了解限购政策和贷款政策,为每一位选择我的客户提供高效,周到,热情的服务是我的宗旨。我不善言辞,却值得信赖,请相信我一定会全力以赴为,选择我的客户在保证少打扰您的情况下,为您提供安全,高效,专业,愉快的房产流通服务。选择我=选择放心。一旦相识,便是朋友。被信任是种快乐。

图片
位置
  • 交通地段
  • 教育机构
  • 医疗设施
  • 购物商超
  • 餐饮娱乐
猜您喜欢
免责声明:房源信息由网站用户提供,其真实性、合法性由信息提供者负责,最终以政府部门登记备案为准。本网站不声明或保证内容之正确性和可靠性,购买该房屋时,请谨慎核查。请您在签订合同之前,切勿支付任何形式的费用,以免上当受骗。
于苏经纪人

电话:

15896121195
手机看房源
同小区房源