急售博威江南明珠苑精装婚房入住半年家具家电全送福 159

12520元/㎡

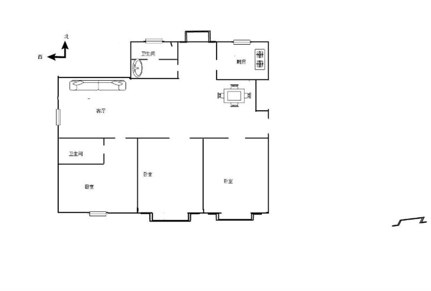
3室2厅1卫

户型

127㎡

建筑面积

南向

朝向

精装修

装修

2014年

建造年代

11层

共11层

住宅

房产类别

商品房

产权类型

70年

产权年限

-

有无电梯
房源动态
  • 100%

    看房处理

  • 2369

    已浏览

  • 0

    已预约

  • 2018-11-05

    最近登录

描述

核心卖点 
核心卖点
1、:
2、税费:各付
3、户型:南北通透,户型方正,得房率高,全明化设计,布局合理 。
4、采光:超大楼间距,采光非常好,前后无任何遮挡
5、产权:产权明晰,无任何产权纠纷,产权人能随时到场签署合同
                            诚意售房,产权清晰,无任何经济纠纷,看房提前预约,非诚勿扰
                        
                            小区配套:小区绿化率非常高,物业完善。人均素质高。地段。周边配套:超市、酒店、医院等设施一应俱全!交通便捷:周边拥有公交车站台
                        
                            收取服务费:最高31800元(≤2.0%)收取服务费:高7950元(≤0.5)诚信服务,快速高效,本人从事二手房行业多年,对新浦区二手房买卖有一定程度的了解,经过公司多次专业培训,希望有机会为您提供置业服务,为您找到满意的家!如果您想看更多房源可点击本人头像下方进入店铺查看

图片
位置
  • 交通地段
  • 教育机构
  • 医疗设施
  • 购物商超
  • 餐饮娱乐
猜您喜欢
免责声明:房源信息由网站用户提供,其真实性、合法性由信息提供者负责,最终以政府部门登记备案为准。本网站不声明或保证内容之正确性和可靠性,购买该房屋时,请谨慎核查。请您在签订合同之前,切勿支付任何形式的费用,以免上当受骗。
山长磊经纪人

电话:

18036689579
手机看房源
同小区房源