同科汇丰国际别墅豪华装修五室两厅带汽车库 690

23958元/㎡

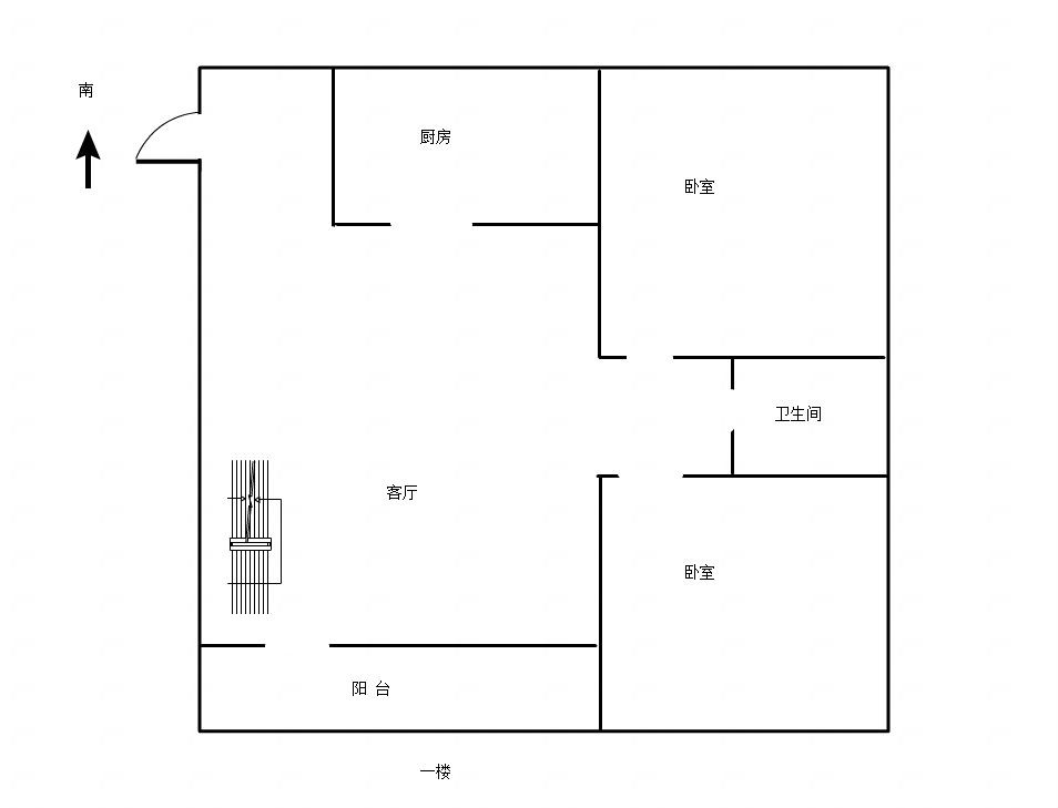
5室2厅2卫

户型

288㎡

建筑面积

南向

朝向

精装修

装修

2014年

建造年代

3层

共4层

住宅

房产类别

商品房

产权类型

70年

产权年限

-

有无电梯
房源动态
  • 100%

    看房处理

  • 2972

    已浏览

  • 0

    已预约

  • 2019-10-12

    最近登录

描述

【房源卖点】:豪华装修,送80平方汽车库。
【配套学校】:三附小,外国语中学,未占用。
【户型介绍】:南北通透,采光很好,布局合理,性价比高。
【产权说明】:产权明晰,无产权纠纷,产权人可随时到店签署合同。
【交通情况】:位于繁华地段,交通便利,为您的出行提供了便捷。
【周边配套】:生活设施齐全,商场,菜市场,超市,银行等应有尽有。
房东置换,诚心出售,欢迎看房,随时恭候您的到来。小区环境优雅,配套非常成熟,周边交通便利,居住舒适。本人从事房地产经纪行业多年,服务热情、周到、专业、真诚,具有丰富的从业经验,熟悉小区各种户型,了解小区周边配套及未来发展规划,为您计算购房税费及首付,合理科学的为您设计购房规划,竭诚为您服务!

图片
位置
  • 交通地段
  • 教育机构
  • 医疗设施
  • 购物商超
  • 餐饮娱乐
猜您喜欢
免责声明:房源信息由网站用户提供,其真实性、合法性由信息提供者负责,最终以政府部门登记备案为准。本网站不声明或保证内容之正确性和可靠性,购买该房屋时,请谨慎核查。请您在签订合同之前,切勿支付任何形式的费用,以免上当受骗。
徐云龙经纪人

电话:

18115860166
手机看房源
同小区房源