急售苍梧双学区金秋情缘精装3室2厅2卫多层2楼中 200

14286元/㎡

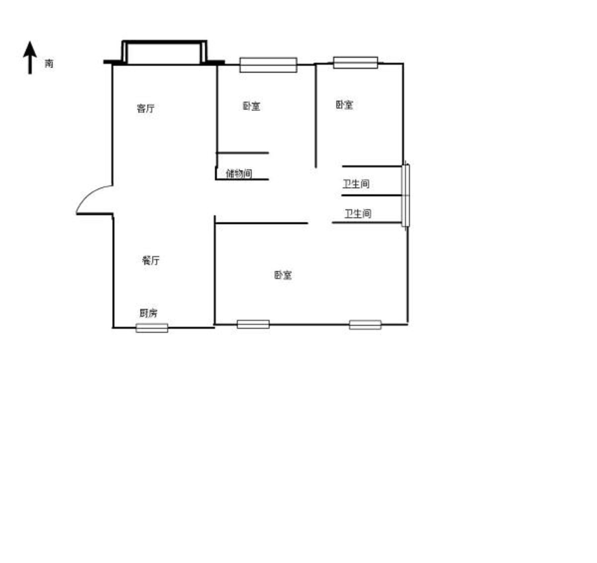
3室2厅2卫

户型

140㎡

建筑面积

南向

朝向

豪华装修

装修

2006年

建造年代

2层

共6层

住宅

房产类别

商品房

产权类型

70年

产权年限

-

有无电梯
房源动态
  • 100%

    看房处理

  • 2770

    已浏览

  • 0

    已预约

  • 2019-08-03

    最近登录

描述

核心卖点 
1 未占用
2 税费各付
3 户型 户型方正 楼层 布局合理 无浪费面积
4 采光 楼层为中高楼层 采光超好 无遮挡
5 产权 该房产权清晰 无任何纠纷 可以放心过户 产权人可以到场办理过户手续
            业主心态1 房本产权清晰,无任何抵押可随时过户。2 诚意出售,此房看房方便只需您提前一个电话。3 房东着急出售,房东心态很稳,您无需担心房东跳价问题!
        小区环境优雅,配套非常成熟,周边交通便利,居住舒适。
            收取服务费:最高20000元(≤1%)我们坚持一切从客户的需求出发,把客户每一次的购房委托,都当作自己在购房,认真、负责、落实、诚心、与您心与心的交流,尽量满足您的所有需求。图片达不到现场效果实地看房,亲身感受。我们以敬业、热诚、专业、负责的精神来服务于每一位新老客户。

图片
位置
  • 交通地段
  • 教育机构
  • 医疗设施
  • 购物商超
  • 餐饮娱乐
猜您喜欢
免责声明:房源信息由网站用户提供,其真实性、合法性由信息提供者负责,最终以政府部门登记备案为准。本网站不声明或保证内容之正确性和可靠性,购买该房屋时,请谨慎核查。请您在签订合同之前,切勿支付任何形式的费用,以免上当受骗。
张典经纪人

电话:

13912188683
手机看房源
同小区房源