自贸区旁公园里毛坯房电梯房低于市场价有钥匙随时看 69

5697元/㎡

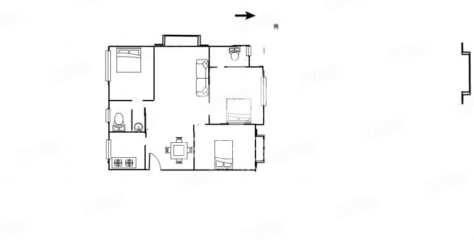
3室2厅1卫

户型

122㎡

建筑面积

南向

朝向

毛坯

装修

2016年

建造年代

3层

共8层

住宅

房产类别

商品房

产权类型

70年

产权年限

-

有无电梯
房源动态
  • 100%

    看房处理

  • 5442

    已浏览

  • 0

    已预约

  • 2020-08-07

    最近登录

描述

1**:未占用
2税费:各付个税
3户型:户型方正
4采光:采光佳前后无遮挡
5产权:产权明晰无纠纷产权人到场签合同
6装修:图片完全一样,可以按照图片参考
7售房:诚心卖房
8综合评估:属于本小区的市场行情价位,价位适中,本公司房源充足,直到为你找到满意的房源为止。

图片
位置
  • 交通地段
  • 教育机构
  • 医疗设施
  • 购物商超
  • 餐饮娱乐
猜您喜欢
免责声明:房源信息由网站用户提供,其真实性、合法性由信息提供者负责,最终以政府部门登记备案为准。本网站不声明或保证内容之正确性和可靠性,购买该房屋时,请谨慎核查。请您在签订合同之前,切勿支付任何形式的费用,以免上当受骗。
程燕经纪人

电话:

18112150928
手机看房源
同小区房源