常乐新村新区供电局宿舍精装三室送车库楼层好纯东户 100

8929元/㎡

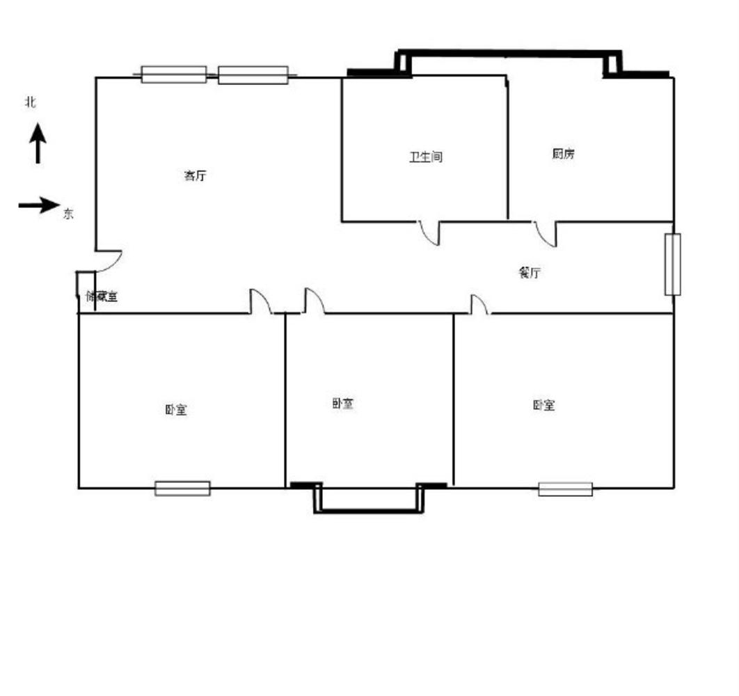
3室2厅1卫

户型

112㎡

建筑面积

南向

朝向

豪华装修

装修

2002年

建造年代

3层

共6层

住宅

房产类别

商品房

产权类型

70年

产权年限

-

有无电梯
房源动态
  • 100%

    看房处理

  • 2239

    已浏览

  • 0

    已预约

  • 2018-10-30

    最近登录

描述

核心卖点 
核心卖点1.学区:学区未占用2.税费:免税房。3.户型:精品楼层,全明通透,布局合理,没有任何浪费面积4.采光:黄金楼层,采光佳,前后无遮挡5.产权:有房产证可以放心购买,房东能到场签署合同6.装修:图片完全真实,可以按照图片参考。
                            .业主心态因个人需要更换大房子(个人产权、产权清晰)所以现在要将此房出售只要有这预算及需求都可以安排看房房子定期打扫、维护所以现在保养的很好此房已取得独家代理权本人有独家签赔书产证及业主的有效证件房子只要你中意我会想方设法让您们成交.
                        
                            小区配套交通便捷,小区安静舒适,闹钟取静,环境优美,非常适合居住,周边配套:超市.银行.医院.学校.地理位置优越,方便孩子上学居住的绝佳选择。属于本小区的市场行情价位,价位适中。本公司房源充足,另外有多套房源在售,没办法在网络上一一呈现,所以看房时候一定带您多看几套,来电也可以告知另外的类似房源。
                        
                            收取服务费:最高10000元(≤1%)本人从事房地产经纪行业多年,具有丰富的从业经验。熟悉小区各种户型,了解小区周围配套及未来发展规划,为您精确计算购房的税费及首付,为您合理科学的设计购房规划.本人从业期间,办理过商业贷款,公积金,转按揭等各种单子,熟悉交易流程.而且本人服务热情,周到,专业,真诚,希望有机会为您提供置业服务,为您找到满意的家。免费看房。专业代办二手房交易手续,房屋买卖,房产评估,抵押贷款。您的交易,我们护航!

图片
位置
  • 交通地段
  • 教育机构
  • 医疗设施
  • 购物商超
  • 餐饮娱乐
猜您喜欢
免责声明:房源信息由网站用户提供,其真实性、合法性由信息提供者负责,最终以政府部门登记备案为准。本网站不声明或保证内容之正确性和可靠性,购买该房屋时,请谨慎核查。请您在签订合同之前,切勿支付任何形式的费用,以免上当受骗。
山长磊经纪人

电话:

18036689579
手机看房源
同小区房源