苍梧春晓毛坯房两室楼层好无遮挡有钥匙随时看房价格 105

13462元/㎡

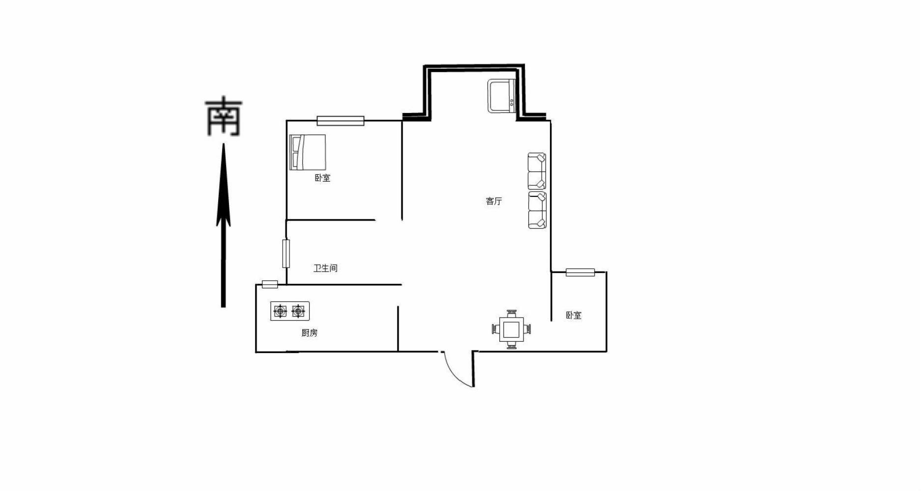
2室2厅1卫

户型

78㎡

建筑面积

南向

朝向

精装修

装修

2018年

建造年代

5层

共28层

住宅

房产类别

商品房

产权类型

70年

产权年限

有无电梯
房源动态
  • 100%

    看房处理

  • 2596

    已浏览

  • 0

    已预约

  • 2026-02-27

    最近登录

描述

核心卖点
                            
                        1.学区:学区.未占用 2.税费:各付各税 3.户型:全明通透,布局合理,没有任何浪费面积 4.采光:前后无遮挡 5.产权:产权明晰无纠纷产权人能到场签署合同 6.装修:图片完全真实,可以按照图片参考 7.售房原因:诚心卖房 8.综合评估:属于本小区的市场行情价位,价位适中。本公司房源充足,另外有多套房源在售,没办法在网络上一一呈现,所以看房时候一定带您多看几套,来电也可以告知另外的类似房源
                    业主心态:房东诚信卖房,买房置换,房子无纠纷,安全过户。小区环境优雅,配套成熟,交通便利,居住舒适.本人做房产多年,一直本着专业的房产知识,为您服务,我会在短的时间内帮您买好满意的房子,不让您错失任何好房子,更不让您每天为买房的事烦心,欢迎随时联系。

图片
位置
  • 交通地段
  • 教育机构
  • 医疗设施
  • 购物商超
  • 餐饮娱乐
猜您喜欢
免责声明:房源信息由网站用户提供,其真实性、合法性由信息提供者负责,最终以政府部门登记备案为准。本网站不声明或保证内容之正确性和可靠性,购买该房屋时,请谨慎核查。请您在签订合同之前,切勿支付任何形式的费用,以免上当受骗。
万先生经纪人

电话:

18036613993
手机看房源
同小区房源