众兴华庭解放路+外国语产证面积136现房复式苏欣 135

10385元/㎡

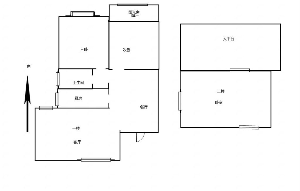
3室2厅1卫

户型

130㎡

建筑面积

南向

朝向

中等装修

装修

2015年

建造年代

32层

共32层

住宅

房产类别

商品房

产权类型

70年

产权年限

-

有无电梯
房源动态
  • 100%

    看房处理

  • 2148

    已浏览

  • 0

    已预约

  • 2018-09-20

    最近登录

描述

核心卖点 
1、学 区:解放路外国语  
2、税费:各付
3、户型:南北通透,户型方正,得房率高,全明化设计,布局合理,餐厨一体化 。
4、采光:超大楼间距,采光非常好,前后无任何遮挡
5、产权:产权明晰,无任何产权纠纷,产权人能随时到场签署合同
6、装修:毛坯房东置换,诚心出售,欢迎看房,随时恭候您的到来。小区环境优雅,配套非常成熟,周边交通便利,居住舒适。本人从事房地产多年,公司有大量好房源,欢迎进入我的店铺查看,欢迎随时电话咨询,相信我的专业,为您置业安家保驾护航。

图片
位置
  • 交通地段
  • 教育机构
  • 医疗设施
  • 购物商超
  • 餐饮娱乐
猜您喜欢
免责声明:房源信息由网站用户提供,其真实性、合法性由信息提供者负责,最终以政府部门登记备案为准。本网站不声明或保证内容之正确性和可靠性,购买该房屋时,请谨慎核查。请您在签订合同之前,切勿支付任何形式的费用,以免上当受骗。
于苏经纪人

电话:

15896121195
手机看房源
同小区房源