凤舞铭居精装修金典3室九年制学校送家具家电纯边户 136

10000元/㎡

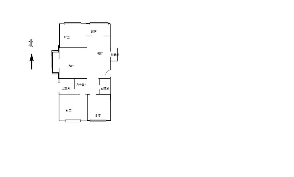
3室2厅1卫

户型

136㎡

建筑面积

南向

朝向

豪华装修

装修

2013年

建造年代

5层

共25层

住宅

房产类别

商品房

产权类型

70年

产权年限

-

有无电梯
房源动态
  • 100%

    看房处理

  • 2162

    已浏览

  • 0

    已预约

  • 2018-11-30

    最近登录

描述

核心卖点 
1.学区:未占用
2.税费:各付各税。
3.户型:精品楼层,全明通透,布局合理,没有任何浪费面积。
南北通透,户型方正,得房率高,全明化设计,布局合理,餐厨一体化 。
业主心态 房东诚意出售(个人产权、产权清晰),因个人需要到外地发展, 忍痛出售此房。房屋装修精选设计,用材考究,真心寻找下一个有缘的新主人!自我推荐:本人从事房地产经纪行业5年,具有丰富的从业经验。熟悉小区各种户型,了解小区周围配套及未来发展规划,为您精确计算购房的税费及首付,为您合理科学的设计购房规划.本人从业期间,办理过商业贷款,公积金,转按揭等各种单子,熟悉交易流程.而且本人服务热情,周到,专业,真诚,希望有机会为您提供置业服务,为您找到满意的家您所看到的房屋信息、房源图片都是真实的,均是实地拍摄,没做过任何杜撰、修改关于服务:免费登记售房/租房免费提供优质专业的市场数据评估
                            房源编号:722151783188480

图片
位置
  • 交通地段
  • 教育机构
  • 医疗设施
  • 购物商超
  • 餐饮娱乐
猜您喜欢
免责声明:房源信息由网站用户提供,其真实性、合法性由信息提供者负责,最终以政府部门登记备案为准。本网站不声明或保证内容之正确性和可靠性,购买该房屋时,请谨慎核查。请您在签订合同之前,切勿支付任何形式的费用,以免上当受骗。
于苏经纪人

电话:

15896121195
手机看房源
同小区房源