新上解放路新海三室 盐业小区多层三楼 近苏宁世纪 110

13769元/㎡

南北通透急售

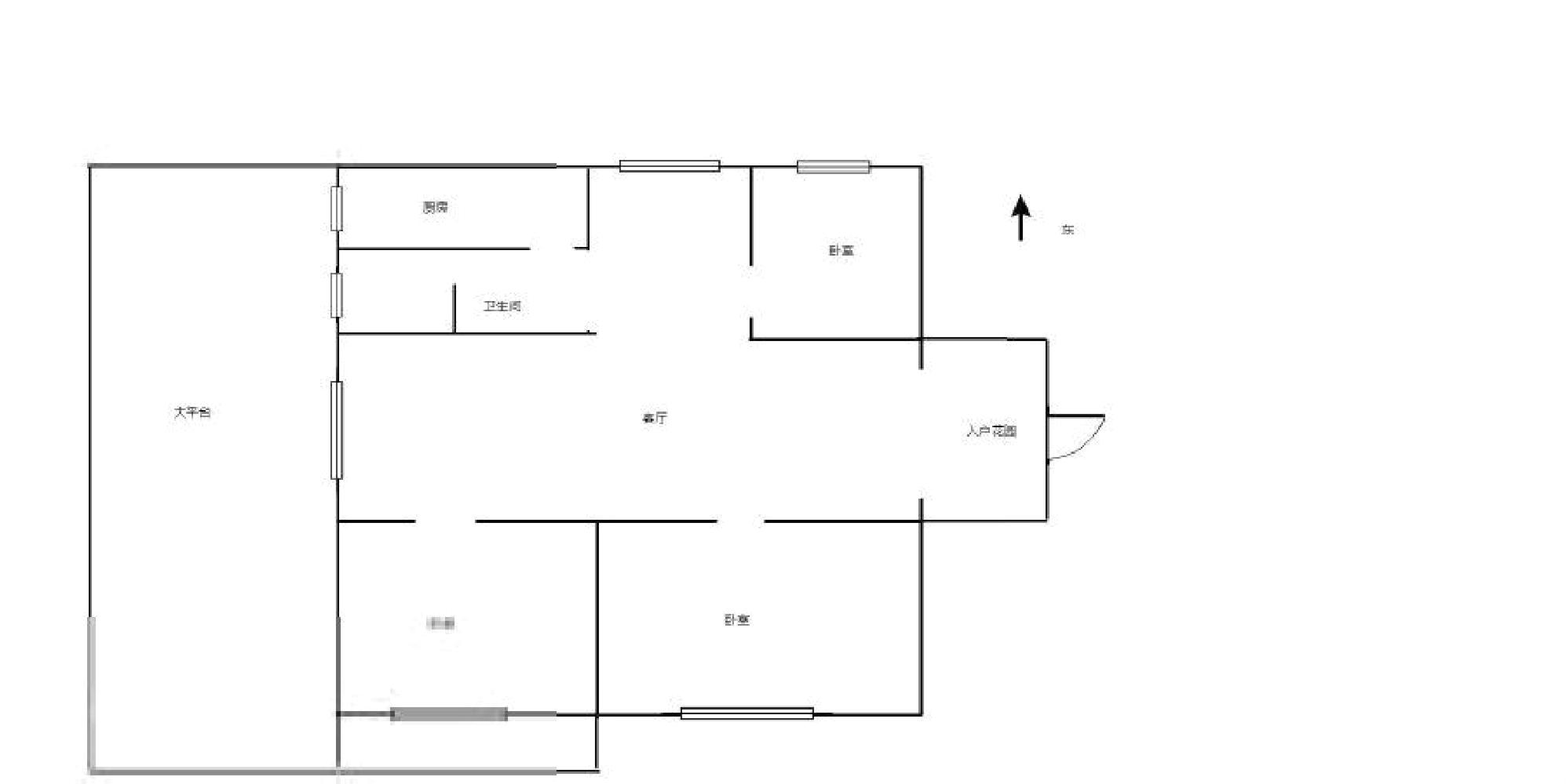
3室1厅1卫

户型

79㎡

建筑面积

南向

朝向

简单装修

装修

1997年

建造年代

1层

共5层

住宅

房产类别

商品房

产权类型

70年

产权年限

有无电梯
房源动态
  • 100%

    看房处理

  • 3466

    已浏览

  • 0

    已预约

  • 2026-02-27

    最近登录

描述

一、【万众房产】
二、本房描述:
三、 未用
四、 税费:税费各自承担
五、 户型: 楼层,全明通透,布局合理,没有任何浪费面积
六、 采光:采光佳,前后无遮挡
七、 产权:产权明晰无纠纷产权人能到场签署合同
八、 装修:图片完全真实,可以按照图片参考房东置换,诚心出售,欢迎看房,随时恭候您的到来。小区环境优雅,配套非常成熟,周边交通便利,居住舒适。自我推荐:本人从事房地产经纪行业5年,具有丰富的从业经验。熟悉小区各种户型,了解小区周围配套及未来发展规划,为您计算购房的税费及首付,为您合理科学的设计购房规划.本人从业期间,办理过商业贷款,公积金,转按揭等各种单子,熟悉交易流程.而且本人服务热情,周到,专业,真诚,希望有机会为您提供置业服务,为您找到满意的家。

图片
位置
  • 交通地段
  • 教育机构
  • 医疗设施
  • 购物商超
  • 餐饮娱乐
猜您喜欢
免责声明:房源信息由网站用户提供,其真实性、合法性由信息提供者负责,最终以政府部门登记备案为准。本网站不声明或保证内容之正确性和可靠性,购买该房屋时,请谨慎核查。请您在签订合同之前,切勿支付任何形式的费用,以免上当受骗。
万先生经纪人

电话:

18036613993
手机看房源
同小区房源