东区东方之珠单价7千3房双卫多层三楼另送大车库2 81

7297元/㎡

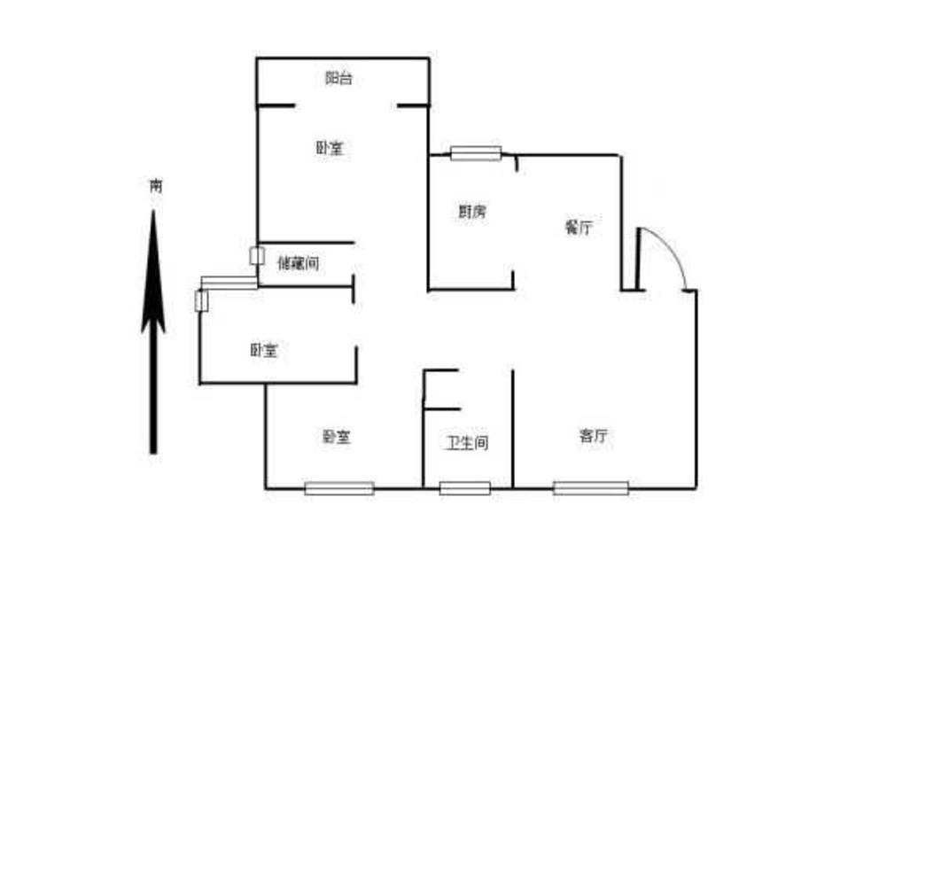
3室2厅1卫

户型

111㎡

建筑面积

南向

朝向

豪华装修

装修

2008年

建造年代

2层

共11层

住宅

房产类别

商品房

产权类型

70年

产权年限

-

有无电梯
房源动态
  • 100%

    看房处理

  • 2245

    已浏览

  • 0

    已预约

  • 2019-01-05

    最近登录

描述

核心卖点 
1 户型布局合理 没有任何浪费空间 南北通透
2 采光好无遮挡 车库一间20平5万,可买不买
3 产权清晰 产权人能及时到场签署合同办手续
4付款方式 全款或贷款
            
            
        
            业住外地置业急需资金 价格低 诚心售房  有钥匙看房方便  !
        
    小区环境优雅,配套非常成熟,周边交通便利,居住舒适。
            
            
        
            尊敬的客户欢迎您的到来我每时每刻在这里希望在您安家置业的路上能帮到您!本人从事此行业已十多年所发布房源信息均真实每一条房源都是经过筛选而发把最便宜最好的都展现在网上!本公司有大量房源不能一一展示在网上所以带看时会带您多看几套类似房源!

图片
位置
  • 交通地段
  • 教育机构
  • 医疗设施
  • 购物商超
  • 餐饮娱乐
猜您喜欢
免责声明:房源信息由网站用户提供,其真实性、合法性由信息提供者负责,最终以政府部门登记备案为准。本网站不声明或保证内容之正确性和可靠性,购买该房屋时,请谨慎核查。请您在签订合同之前,切勿支付任何形式的费用,以免上当受骗。
张典经纪人

电话:

13912188683
手机看房源
同小区房源