温哥华国际花园同科汇丰国际旁送车库精装全送得房率 158

11704元/㎡

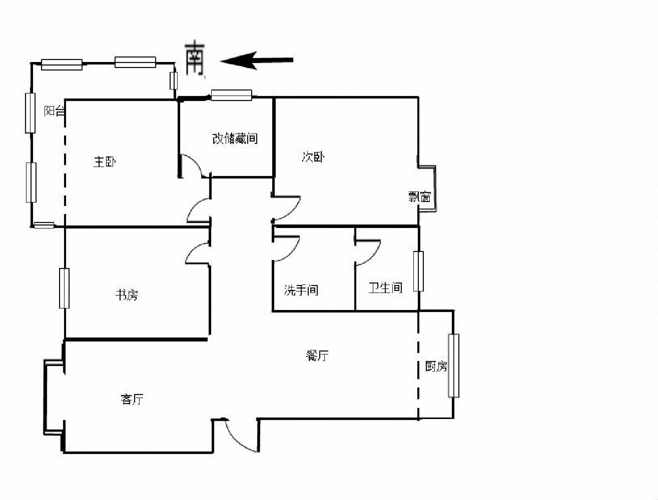
3室2厅2卫

户型

135㎡

建筑面积

南向

朝向

豪华装修

装修

2007年

建造年代

5层

共6层

住宅

房产类别

商品房

产权类型

70年

产权年限

-

有无电梯
房源动态
  • 100%

    看房处理

  • 2103

    已浏览

  • 0

    已预约

  • 2018-09-12

    最近登录

描述

核心卖点 
一、小区名称:温哥华国际花园
二、送8平米自行车库和车位
三、楼层佳
四、户型:户型,全明,南北通透,布局合理,没有任何浪费面积
五、学校:三附小、外国语
                            房东置换,诚心出售,欢迎看房,随时恭候您的到来。
                        
                            小区环境优雅,配套非常成熟,周边交通便利,居住舒适。
                        
                            收取服务费:最高31600元(≤2.0%)本人从事房地产多年,公司有大量好房源,欢迎进入我的店铺查看,欢迎随时电话咨询,相信我的专业,为您置业安家保驾护航。

图片
位置
  • 交通地段
  • 教育机构
  • 医疗设施
  • 购物商超
  • 餐饮娱乐
猜您喜欢
免责声明:房源信息由网站用户提供,其真实性、合法性由信息提供者负责,最终以政府部门登记备案为准。本网站不声明或保证内容之正确性和可靠性,购买该房屋时,请谨慎核查。请您在签订合同之前,切勿支付任何形式的费用,以免上当受骗。
赵克博经纪人

电话:

15050948967
手机看房源
同小区房源