万象后街福景苑大阳台高铁人民医院女人街中心 105

11798元/㎡

南北通透急售

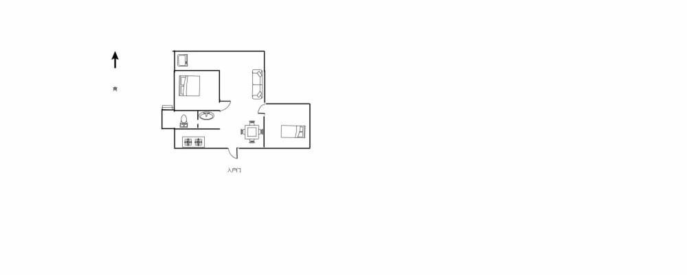
2室2厅1卫

户型

89㎡

建筑面积

南向

朝向

精装修

装修

2014年

建造年代

12层

共24层

住宅

房产类别

商品房

产权类型

70年

产权年限

有无电梯
房源动态
  • 100%

    看房处理

  • 2361

    已浏览

  • 0

    已预约

  • 2023-05-04

    最近登录

描述

【配套】:周边医院、超市、菜场、公园、银行,步行商业街,购物中心。足够满足日常生活需要。【户型】:精装三室,两室向阳,户型方正,采光通风,无浪费面积。前后无遮挡。【产权】:产权明晰无纠纷,房东可到场签署合同。购买流程透明化。【】:图片有效且是亲自上门实勘,无虚假成分,请放心参考。【介绍】:如若该房源不满意,本公司在本小区及周边其他小区均有多套房子在售,确保真诚的服务给每位客户匹配到自己满意的房子。请各位看官及时和我联系,把您的需求告诉我。我会全力给您匹配房源。直到您选到满意的房子为止。【售房原因】业主因去外地发展,购置新房【是否急卖】是【委托情况】已签委托书【价格空间】看中可谈房子产权明晰,无任何不良抵押,齐全,房东目前急需资金周转,全权委托我们公司帮忙找买家,由于地段好小区环境以及配套设施都很到位,尤其是价格要求,如果买家诚意,房东很愿意谈的,房东要求越快越简单越好!小区环境优雅,配套成熟,交通便利,居住舒适.1.报价,绝无虚构;2.面积可靠,绝无浮夸;3.价格均为业主报价有效;4.不赚取房款差价;5.不赚取税费差价;6.不取评估差价。

图片
位置
  • 交通地段
  • 教育机构
  • 医疗设施
  • 购物商超
  • 餐饮娱乐
猜您喜欢
免责声明:房源信息由网站用户提供,其真实性、合法性由信息提供者负责,最终以政府部门登记备案为准。本网站不声明或保证内容之正确性和可靠性,购买该房屋时,请谨慎核查。请您在签订合同之前,切勿支付任何形式的费用,以免上当受骗。
茆廷梅经纪人

电话:

19895955002
手机看房源
同小区房源