国大三室精装修新海中学学区房单价美丽房东急售 188

12533元/㎡

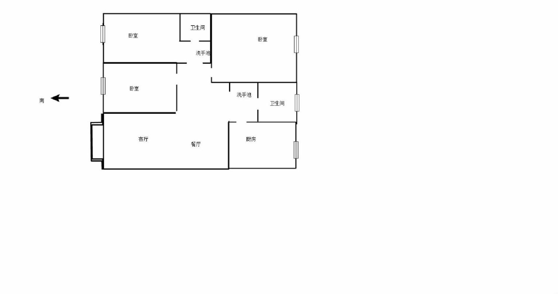
3室2厅2卫

户型

150㎡

建筑面积

南向

朝向

豪华装修

装修

2007年

建造年代

8层

共11层

住宅

房产类别

商品房

产权类型

70年

产权年限

-

有无电梯
房源动态
  • 100%

    看房处理

  • 2183

    已浏览

  • 0

    已预约

  • 2019-07-13

    最近登录

描述

核心卖点
                            
                        中心区发展区域万众房产全国连锁致力打造专业的二手房市场,房源介绍:1、学区:小学 中学!!2、户型:室厅 户型方正 3、装修:装修 电梯4、生活:附近有超市、菜场、学校,银行、公园等,生活方便无忧;精品房源,楼层采光好,成熟小区群生活方便,此房价低均价低,性价比较高!

图片
位置
  • 交通地段
  • 教育机构
  • 医疗设施
  • 购物商超
  • 餐饮娱乐
猜您喜欢
免责声明:房源信息由网站用户提供,其真实性、合法性由信息提供者负责,最终以政府部门登记备案为准。本网站不声明或保证内容之正确性和可靠性,购买该房屋时,请谨慎核查。请您在签订合同之前,切勿支付任何形式的费用,以免上当受骗。
赵多经纪人

电话:

18061395775
手机看房源
同小区房源