急售第一人民医院旁港城一品3室2厅近万达四季金辉 116

10265元/㎡

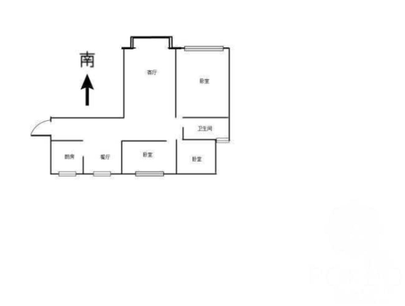
3室2厅1卫

户型

113㎡

建筑面积

南向

朝向

毛坯

装修

2012年

建造年代

8层

共34层

住宅

房产类别

商品房

产权类型

70年

产权年限

-

有无电梯
房源动态
  • 100%

    看房处理

  • 2327

    已浏览

  • 0

    已预约

  • 2019-01-13

    最近登录

描述

核心卖点 
1.学 区:学 区.未占用
2.税费:各付各税
3.户型:精品楼层,全明通透,布局合理,没有任何浪费面积
4.采光:黄金楼层,采光佳,前后无遮挡
5.产权:产权明晰无纠纷产权人能到场签署合同
业主人很好,很直爽,诚心售房,积极配合办理房产过户等一切手续,看房方便小区环境优雅,配套非常成熟,周边交通便利,居住舒适。本人从事房地产经纪行业多年,具有丰富的从业经验,熟悉小区各种户型,了解小区周围配套及未来发展规划,为您精确计算购房的税费及首付,为您合理科学的设计购房规划,本人从业期间,办理过商业贷款,公积金贷款,组合贷款,转按揭等各种单子,熟悉交易流程,而且本人服务热情周到,专业真诚,希望有机会为您提供置业服务,为您找到满意的家!

图片
位置
  • 交通地段
  • 教育机构
  • 医疗设施
  • 购物商超
  • 餐饮娱乐
猜您喜欢
免责声明:房源信息由网站用户提供,其真实性、合法性由信息提供者负责,最终以政府部门登记备案为准。本网站不声明或保证内容之正确性和可靠性,购买该房屋时,请谨慎核查。请您在签订合同之前,切勿支付任何形式的费用,以免上当受骗。
山长磊经纪人

电话:

18036689579
手机看房源
同小区房源