港城一品毛坯现房全网醉低随时看房四季金辉秀逸苏杭 118

9672元/㎡

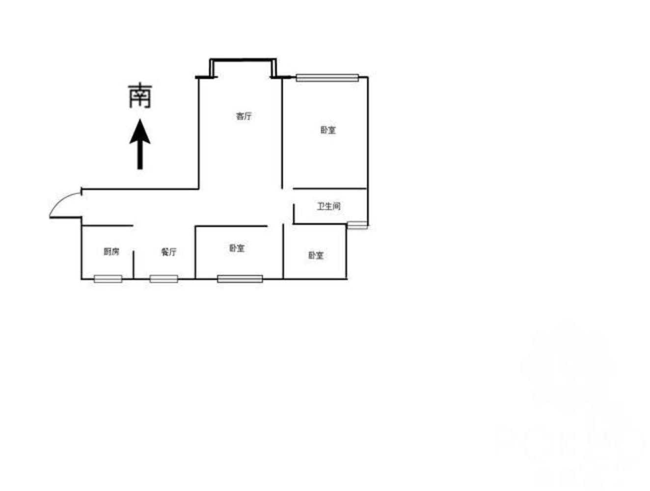
3室2厅1卫

户型

122㎡

建筑面积

南向

朝向

毛坯

装修

2017年

建造年代

18层

共34层

住宅

房产类别

商品房

产权类型

70年

产权年限

-

有无电梯
房源动态
  • 100%

    看房处理

  • 2282

    已浏览

  • 0

    已预约

  • 2018-11-04

    最近登录

描述

核心卖点 
1、房屋格局方正,大厅两卧朝南,南北通透。采光,全天采光,小区达到40,多种绿色植被,的氧吧,还有各种健身器材,让你的生活更健康。
2、本小区物业多次被评为&ldo;物业&rdo;,小区实行人车分流,无需担心老人小孩在小区的安全问题。3、出门步行十分钟到超市,购物方便,楼下就是公交车站,出行方便。
4、地段好,有巨大的空间。
                            房主诚意出售此房,如诚心购买,可提前联系看房,价格可面谈协商。房产经纪人找一套好房源不易,其他中介勿扰,非诚意购房者勿扰。
                        
                            小区地理位置好,位于圈,,出小区就是BRT站牌,小区周边配套设施齐全,银行、超市、菜市、、医院、商务会所,应有尽有。小区环境幽雅,绿化面积大,家里家室家电齐全,可带衣物直接入住!看房方便,提前预约!欢迎致电!
                        
                            收取服务费:11800元(≤)我不能降低房价,但是能让你不高价买房!看到这条信息的你,不知道是去年考虑买房,还是今年考虑买房如果去年你想买房,那么很遗憾你错过了好机会房价涨了多少我想你清楚现在还有一次机会,就是现在不是明天不是下个月想买房的话吧!

图片
位置
  • 交通地段
  • 教育机构
  • 医疗设施
  • 购物商超
  • 餐饮娱乐
猜您喜欢
免责声明:房源信息由网站用户提供,其真实性、合法性由信息提供者负责,最终以政府部门登记备案为准。本网站不声明或保证内容之正确性和可靠性,购买该房屋时,请谨慎核查。请您在签订合同之前,切勿支付任何形式的费用,以免上当受骗。
山长磊经纪人

电话:

18036689579
手机看房源
同小区房源